002 Frontier Shores Lane, Graford, TX, 76449
002 Frontier Shores LaneGraford, TX 76449




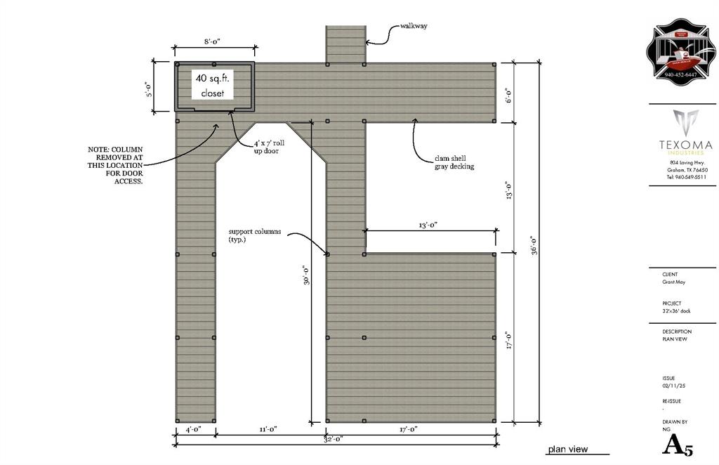
NEW WATERFRONT CONSTRUCTION! This house has it all. 5 bedroom water front house with 5 full baths and (2) 0.5 baths. Master suite and Junior Master both facing the water. A bunk room with built in bunk beds to pile in kiddos for a weekend of fun. Pool that will over look the lake with hot tub and fire feature. Full kitchen with Thermador appliances and a separate prep kitchen for additional space. Construction on this is top notch. Anderson and Western windows, Rinnai tankless water heaters, open cell foam insulation, cabinets will be a combination of white oak and paint grade. House includes a brand new dock that is being built as well. It will house a 30' boat along with several jet skis. Unique opportunity to be on the water in a gated community with only 5 lots.
| 21 hours ago | Listing updated with changes from the MLS® | |
| yesterday | Listing first seen on site |
© 2020 North Texas Real Estate Information Systems. All rights reserved. Information is deemed reliable but is not guaranteed accurate by the MLS or NTREIS. The information being provided is for the consumer's personal, non-commercial use, and may not be reproduced, redistributed, or used for any purpose other than to identify prospective properties consumers may be interested in purchasing.
Last checked: 2026-04-04 05:13 PM CDT


Did you know? You can invite friends and family to your search. They can join your search, rate and discuss listings with you.